BUSCH-IMMOBILIEN ~ Großzügige Etagenwohnung im Güstrower Stadtzentrum!

Eckdaten

  • Art Etagenwohnung
  • Lage 18273 Güstrow
  • Miete zzgl. NK 1.165,00
  • Warmmiete 1.545,00
  • Mietpreis pro m² 9,50
  • Nebenkosten 152,00
  • Wohnfläche ca. 122
  • Zimmer 4
  • Kellerfläche ca. 6
  • Baujahr 2015
  • Etagenzahl 3
  • Etage 1
  • Alt-/Neubau Altbau
  • Denkmalschutzobjekt ja
  • Einbauküche ja
  • Gäste-WC ja
  • Stellplatztyp Aussenstellplatz
  • Stellplatzanzahl 1
  • Kaution 3495 €
  • Haustiere erlaubt ja
  • Stellplatzmiete 45,00
  • Verfügbar ab 01.05.2026
  • Bodenbelag Dielen Fliesen
  • Ausstattung des Bades Dusche Badewanne Fenster
  • Zustand Neuwertig
  • Immobilien-ID 151252531
BUSCH-IMMOBILIEN
Hageböcker Straße 112, 18273 Güstrow
Teilen

Immobilie

Kurzbeschreibung
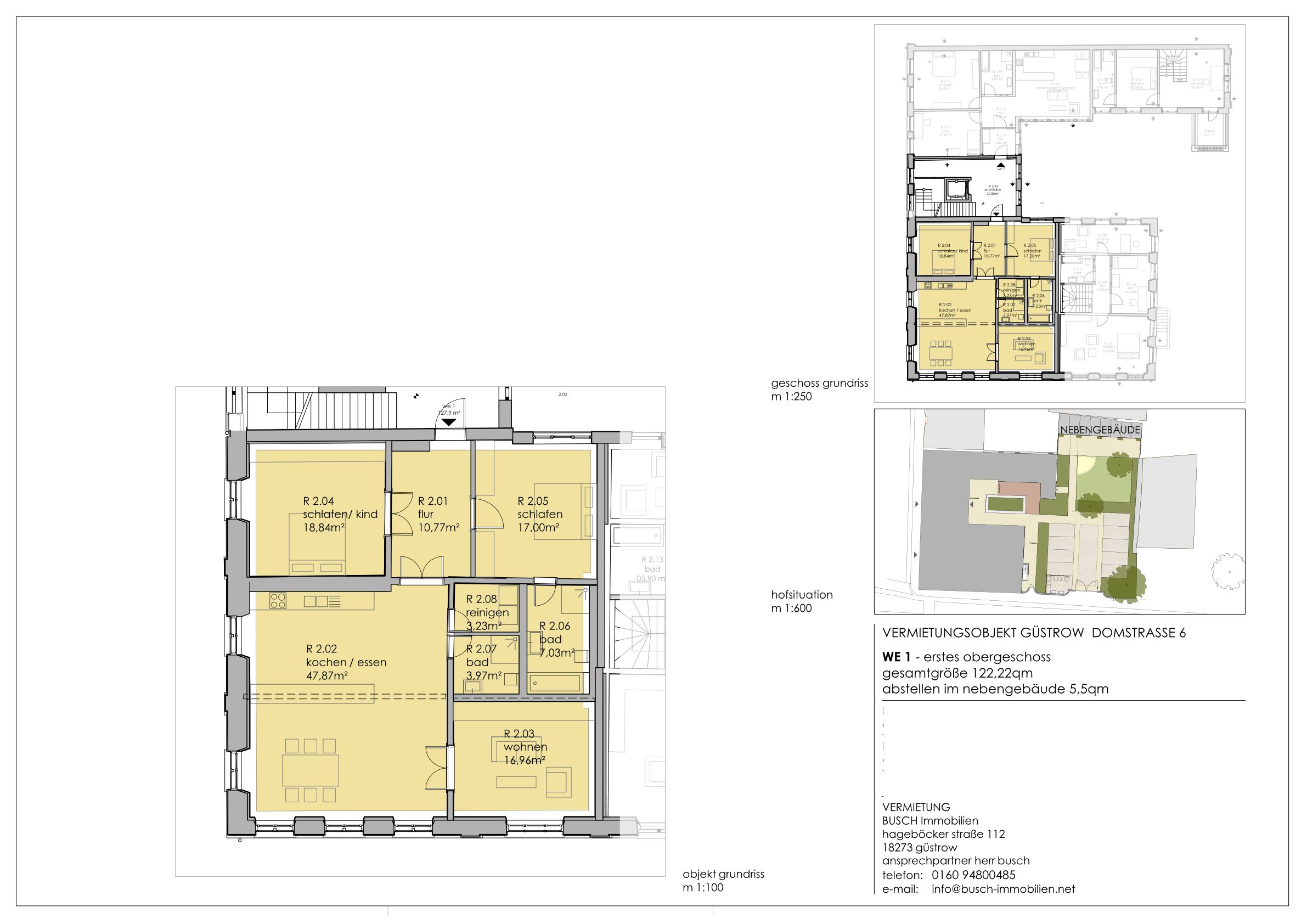
Beeindruckendes Stadthaus in zentraler Lage im Güstrower Stadtkern. Der gesamte Gebäudekomplex wurde im Jahr 2015 umfassend saniert bzw. teilweise neu errichtet und umfasst insgesamt 9 Wohneinheiten sowie 1 Gewerbeeinheit. Historisches Ambiente wird hier auf gelungene Weise mit modernem Wohnkomfort verbunden. Viele originale Stilelemente sowie eine Vielzahl architektonischer Details verleihen dem Gebäudeensemble seinen besonderen Charme.
Die angebotene Etagenwohnung überzeugt durch eine tadellose Objektsanierung in Verbindung mit einer hochwertigen Ausstattung und lässt in puncto Wohnkomfort kaum Wünsche offen. Die Einheit befindet sich im 1. Obergeschoss und erstreckt sich über ca. 122 m² Wohnfläche. Der Grundriss umfasst einen Eingangsbereich, einen offen gestalteten Wohn-, Koch- und Essbereich, drei Schlafzimmer, ein Badezimmer sowie ein separates Gäste-WC.
Großzügige Fensterflächen sorgen für eine hervorragende Lichtdurchflutung und ein helles, freundliches Wohnambiente. Das modern geflieste Tageslichtbad ist mit Badewanne, Dusche, Handtuchheizkörper sowie Fußbodenheizung ausgestattet. Die Waschmaschine findet ihren Platz im Gäste-WC. In der gesamten Wohnung sind Massivholz-Landhausdielen aus Eiche verlegt; zudem verfügt die Einheit über eine Fußbodenheizung in allen Wohnbereichen. Ein Fahrstuhl gewährleistet einen komfortablen Zugang bis in die Wohnetage!

Keyfacts!
Domstraße 6, 18273 Güstrow | WE-01
1. Obergeschoss - 122,22 m² Wohnfläche
Stadthaus in Massivbauweise | umfassend saniert 2015 | Fahrstuhl
Massivholz-Landhausdielen Eiche
Badezimmer mit Wanne & Dusche, Tageslichtfenster, Handtuchheizkörper
Separates Gäste-WC
Offener Wohn-, Küchen- und Essbereich | Einbauküche
Isolierverglasung | Fußbodenheizung im gesamten Wohnbereich


Fazit!
Dieses Wohnprojekt vereint historische Substanz mit zeitgemäßem Wohnkomfort auf hohem Niveau. Die Mieter profitieren von einer hochwertigen Sanierung, einer durchdachten Raumaufteilung sowie einer attraktiven Innenstadtlage. Ein liebevoll angelegtes Gemeinschaftsgrundstück mit Trockenplatz, Fahrradraum/Nebengelass und Abstellmöglichkeiten rundet das Angebot ab.

Hinweis(e)!
Mindestvertragslaufzeit 36 Monate

Ausstattung

Keller Rollstuhlgerecht Aufzug Gäste-WC Balkon vorhanden Terrasse vorhanden Einbauküche

Grundrisse

Weitere Informationen

Wie können wir Ihnen behilflich sein?

Herzlichen Dank für Ihre Anfrage.

Wir werden diese so schnell wie möglich bearbeiten.

Wie können wir Ihnen behilflich sein?
* Pflichtfeld